Logo

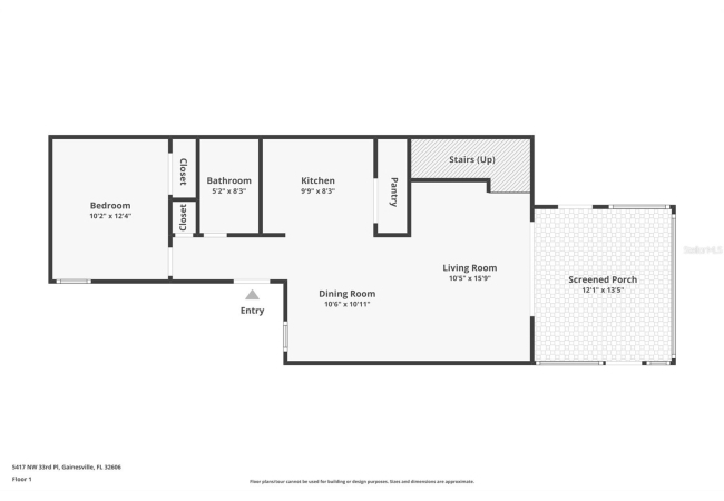
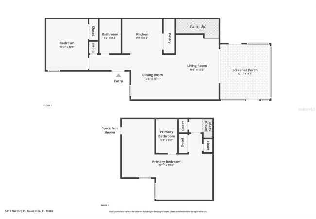
5417 NW 33RD PL Gainesville, FL 32606

Neighborhood:

Timberway

2 Bed
2 Bath
1225 Sq ft
1984 built
Looking for an end unit townhome in a great location in Gainesville? This 2-bedroom and 2-bathroom end unit townhome in Timberway is move-in ready and waiting for you! This home features 1,225 square feet with the primary suite upstairs and a sunporch downstairs overlooking landscaping, trees and privacy. Downstairs hosts the second bedroom, the kitchen, dining room, living room, and the sunporch. Upstairs hosts the primary suite with double closets and a newer upgraded full bathroom. The primary suite also features an additional sitting area or extra space to use for a big closet, plus access to the attic for additional storage place. This home has no carpet, fresh paint throughout, and newer vinyl flooring in most areas. The sunporch is a great addition to this home and offers beautiful living space while welcoming the outside. You can enjoy nature watching, your morning and evening beverages, and relaxing on this sunporch. The laundry room is also accessed through the sunporch. This home has 2 designated parking spaced located directly in front of the home for easy access. The low monthly HOA covers the roof, pest control and grounds maintenance. Timberway is a peaceful and well-maintained community featuring nature, trees and green spaces, a dog walking area, a swing set and outdoor pavilion for its residents and guests to enjoy and relax while overlooking a grassy area for additional outdoor activity space. The location of this home in Timberway is perfect and secluded with being an end unit townhome while also being in the back of the community and it backing up to nature and a wooded buffer. The location of this community in NW Gainesville is ideal as it is just minutes away from some of Gainesville's most loved restaurants, coffee, groceries and shopping, Buchholz High School, and Santa Fe College. Plus, an easy commute to local hospitals and the University of Florida. Do not miss this awesome opportunity to own your own home in this great NW community!
More Info and HOA
  • Price/Sq. Ft.$176
  • Association Fee Amount$178 Monthly
  • Association Fee CoversMaintenance Structure, Pest Control
  • Neighborhood AmenitiesPlayground, Community Mailbox, Street Lights
  • PetsYes, Cats OK, Dogs OK
  • MLS #535181
Exterior Features
  • TypeTownhouse
  • Exterior ConstructionBrick
  • Exterior MiscSliding Doors, Storage, End Unit
Interior Features
  • FloorsTile, Vinyl, Laminate
  • FeaturesWindow Treatments, Ceiling Fans(s), High Ceilings, Thermostat, Living Room/Dining Room Combo, Open Floorplan, PrimaryBedroom Upstairs
  • Appliances/EquipmentDishwasher, Disposal, Electric Water Heater, Refrigerator, Dryer, Microwave, Range, Cooktop, Exhaust Fan, Washer, Freezer
  • A/CCentral Air
  • HeatingCentral, Electric
  • UtilitiesCable Available, Electricity Connected, Phone Available, Sewer Connected, Water Connected, BB/HS Internet Available, Public
Map Location
  • Road
  • Satellite
  • Hybrid
Listing History
  • Date Days ago Event New Price
  • Nov 03, 2025 0 days ago New on Market $215,000
Schedule Tour or Get More Info

Schedule a tour or receive an e-mail with more information about this property. For immediate assistance with this property or any other properties for sale, call Realtor Matt Price at (352) 281-3551.

Check 1 or More Boxes:
Similar Listings for Sale
X