Logo

21073 NW 167TH PL High Springs, FL 32643

Neighborhood:

Edgemoor

4 Bed
2 Bath
2160 Sq ft
2002 built
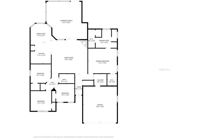
Located on a spacious fenced 1-acre lot in the Edgemoor subdivision of High Springs, this well-maintained 4-bedroom, 2-bath home offers approximately 2,160 square feet with an open, split floor plan designed for comfortable living. The large great room features vaulted ceilings and a wood-burning fireplace, creating a warm and inviting gathering space that flows into the dining area and kitchen. Interior has been freshly painted throughout. The kitchen overlooks the main living areas and includes all appliances, including a French door refrigerator, dishwasher, microwave, and oven/range, along with abundant cabinetry, a pantry, and plenty of counter space. The primary suite features two walk-in closets and an ensuite bathroom with dual vanities, a soaking tub, and a large walk-in shower. Three additional bedrooms and a full bathroom are located on the opposite side of the home, providing a functional and flexible layout. Interior flooring includes laminate in the living room, ceramic tile in the kitchen, dining area, hallway, laundry room, and bathrooms, and wood-look tile in the primary bedroom. The home also includes an indoor laundry room with washer and dryer included. Major updates completed in 2020 include the roof, HVAC system, hot water heater, kitchen appliances, and a mini-split system that services the enclosed rear porch, providing additional climate-controlled space. Outdoor features include mature trees and landscaping, a fully fenced yard, a workshop, an RV hookup with additional fenced storage space. The neighborhood features winding roads and a local park within walking distance. Conveniently located between High Springs and Alachua with easy access to US 441, the property is approximately 30 minutes from Gainesville and Lake City.
More Info and HOA
  • Price/Sq. Ft.$206
  • Association Fee Amount$204 Annually
  • Association Fee CoversManagement, Insurance, Common Area Taxes
  • Neighborhood AmenitiesDeed Restrictions, Golf Carts OK, Street Lights
  • MLS #537107
Exterior Features
  • TypeSingle Family Residence
  • Acres1
  • Architectural StyleRanch
  • Exterior ConstructionFrame, HardiPlank Type
  • RoofShingle
  • Exterior MiscRain Gutters, French Doors, Sidewalk, Private Mailbox
  • GarageYes
  • ParkingDriveway, Garage Door Opener, Boat
  • PoolNo
  • Patio And Porch FeaturesCovered, Front Porch, Rear Porch, Enclosed
  • FencingWood, Fenced
Interior Features
  • FloorsCarpet, Tile, Ceramic Tile, Luxury Vinyl
  • FeaturesCeiling Fans(s), Formal Dining Room Separate, Inside Utility, Eat-in Kitchen, High Ceilings, Split Bedroom, Thermostat, Vaulted Ceiling(s), Walk-In Closet(s), Den/Library/Office, Open Floorplan, Great Room, Primary Bedroom Main Floor
  • Appliances/EquipmentDishwasher, Disposal, Electric Water Heater, Refrigerator, Dryer, Microwave, Range, Exhaust Fan, Washer
  • A/CCentral Air
  • HeatingCentral, Electric
  • UtilitiesCable Available, Electricity Connected, Sewer Connected, Water Connected, BB/HS Internet Available, Underground Utilities, Public
School Zone
  • Elementary SchoolHigh Springs Community School-AL
  • Middle SchoolHigh Springs Community School-AL
  • High SchoolSanta Fe High School-AL
Map Location
  • Road
  • Satellite
  • Hybrid
Listing History
  • Date Days ago Event New Price
  • Apr 24, 2026 5 days ago Price Reduced: -$5,000 (1.11%) $445,000
  • Mar 12, 2026 48 days ago New on Market $450,000
Schedule Tour or Get More Info

Schedule a tour or receive an e-mail with more information about this property. For immediate assistance with this property or any other properties for sale, call Realtor Matt Price at (352) 281-3551.

Check 1 or More Boxes:
Similar Listings for Sale
X