Logo

6706 NW 18 AVE Gainesville, FL 32605

Neighborhood:

University Acres

4 Bed
2 Bath
2539 Sq ft
1965 built
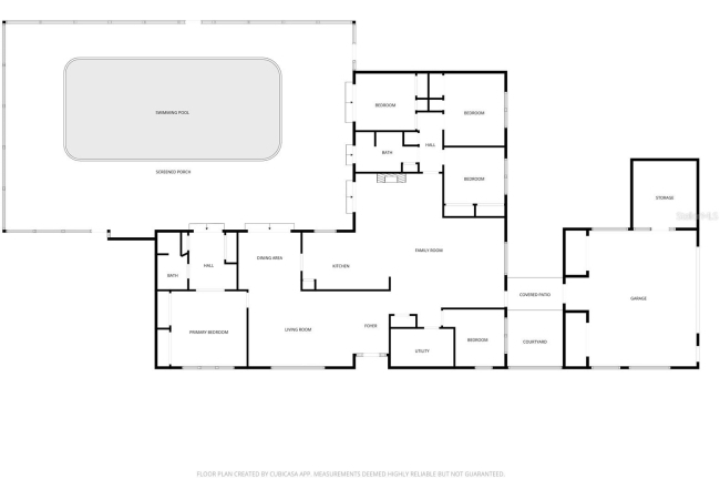
Short Sale. This is a great opportunity to own a timeless Gainesville residence that exudes mid-century sophistication and architectural integrity. Sitting on an acre and built in 1965, this home offers a captivating blend of period design and modern livability. Distinctive built-ins, clean lines, and curated craftsmanship showcase the thoughtful details of a bygone era, each space designed with function and classic living in mind. The living areas are open yet defined, anchored by a statement that highlights the home’s original design intent. Expansive glass doors bring in natural light and invite you to the tranquil outdoor retreat beyond. The screened-in pool and covered lanai create a seamless indoor-outdoor flow perfect for entertaining or unwinding in privacy. The pool area offers convenient access points into the home through multiple poolside entryways. From its classic design to the spacious layout and solid construction, this home offers a canvas for restoration or refinement—an ideal match for buyers who appreciate character and quality. Located in a quiet, established neighborhood near parks, shopping, and the University of Florida, this residence combines nostalgic charm with enduring potential. Experience the grace of mid-century design and the opportunity to make it your own. Owner-occupied short sale. Do not disturb occupants. Confirm approved appointment time prior to showing.
More Info and HOA
  • Price/Sq. Ft.$177
  • Neighborhood AmenitiesStreet Lights
  • MLS #534929
Exterior Features
  • TypeSingle Family Residence
  • Acres1
  • Exterior ConstructionBlock
  • RoofMetal, Shingle
  • Exterior MiscRain Gutters, Sliding Doors, Storage, Outdoor Grill, Private Mailbox
  • GarageYes
  • PoolYes
  • Pool FeaturesIn Ground, Screen Enclosure, Solar Heat, Diving Board
Interior Features
  • FloorsCarpet, Tile, Ceramic Tile, Laminate, Wood, Linoleum
  • FeaturesCeiling Fans(s), Inside Utility, Split Bedroom, Open Floorplan, Stone Counters, Storage Rooms, Primary Bedroom Main Floor
  • Appliances/EquipmentDishwasher, Disposal, Refrigerator, Dryer, Gas Water Heater, Range, Washer
  • A/CCentral Air
  • HeatingNatural Gas, Central
  • UtilitiesCable Available, Electricity Connected, Water Connected, Natural Gas Connected
Map Location
  • Road
  • Satellite
  • Hybrid
Listing History
  • Date Days ago Event New Price
  • Apr 18, 2026 0 days ago Price Increased: $21,000 (4.90%) $450,000
  • Dec 14, 2025 125 days ago Price Reduced: -$21,000 (4.67%) $429,000
  • Oct 23, 2025 177 days ago New on Market $450,000
Schedule Tour or Get More Info

Schedule a tour or receive an e-mail with more information about this property. For immediate assistance with this property or any other properties for sale, call Realtor Matt Price at (352) 281-3551.

Check 1 or More Boxes:
Similar Listings for Sale
X