Logo

2926 SW 35TH PL #7 Gainesville, FL 32608

Neighborhood:

Chase Hollow

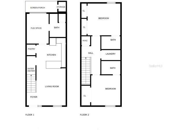
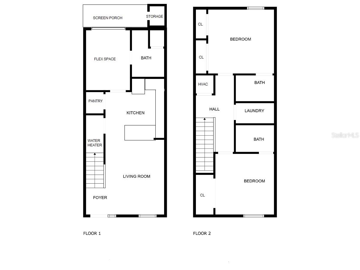
2 Bed
3 Bath
1091 Sq ft
2008 built
Fully Furnished Gem Near UF – 2BR/3BA + Flex Space | Immaculate & Move-In Ready! If you are looking for a stylish, turn-key home just 1.5 miles from the University of Florida, this is it! This fully furnished 2-bedroom, 3 full bathroom home with additional flex space is your perfect match—ideal as a primary residence, second home, or rental. Step inside to a modern open floor plan featuring your living room and sleek kitchen with real wood cabinets, granite countertops, and upgraded stainless steel appliances that are less than 5 years old. No carpet here—enjoy the low-maintenance beauty of upgraded wood-look tile flooring throughout. Relax and enjoy peace of mind knowing this home has hurricane impact windows and doors, a state-of-the-art alarm system, exterior security cameras, and wall-mounted smart TVs already in place. Relax year-round on the screened-in porch, and enjoy the convenience of a reserved parking space right out front. Prime location near Shands Hospital, the UF Vet School, I-75, and the shops and dining at Butler Plaza—everything you need is just minutes away. On bus route. HOA covers the pool, roof, exterior maintenance, landscaping, internet, and trash service—making for easy, worry free living. Priced with furniture included, but seller is open to offers without furnishings. Don’t miss your chance to own this clean, secure, and beautifully maintained property in Gainesville! Schedule your private showing today and see why this one stands out!
More Info and HOA
  • Price/Sq. Ft.$234
  • Association Fee Amount$270 Monthly
  • Association Fee CoversInsurance, Maintenance Grounds, Internet
  • Neighborhood AmenitiesPool
  • PetsBreed Restrictions, Number Limit
  • MLS #532668
Exterior Features
  • TypeCondominium
  • Exterior ConstructionOther, HardiPlank Type
  • Exterior MiscLighting, French Doors, Sidewalk
Interior Features
  • FloorsCeramic Tile
  • FeaturesKitchen/Family Room Combo, Window Treatments, Ceiling Fans(s), Stone Counters
  • Appliances/EquipmentDishwasher, Refrigerator, Dryer, Microwave, Range, Washer
  • A/CCentral Air
  • HeatingCentral
  • UtilitiesBB/HS Internet Available
School Zone
  • Elementary SchoolIdylwild Elementary School-AL
  • Middle SchoolKanapaha Middle School-AL
  • High SchoolEastside High School-AL
Map Location
  • Road
  • Satellite
  • Hybrid
Listing History
  • Date Days ago Event New Price
  • Jul 23, 2025 85 days ago New on Market $255,000
Schedule Tour or Get More Info

Schedule a tour or receive an e-mail with more information about this property. For immediate assistance with this property or any other properties for sale, call Realtor Matt Price at (352) 281-3551.

Check 1 or More Boxes:
Similar Listings for Sale
X