Logo

5391 SW 52ND CT Gainesville, FL 32608

Neighborhood:

Oaks Preserve

4 Bed
3 Bath
1956 Sq ft
2026 built
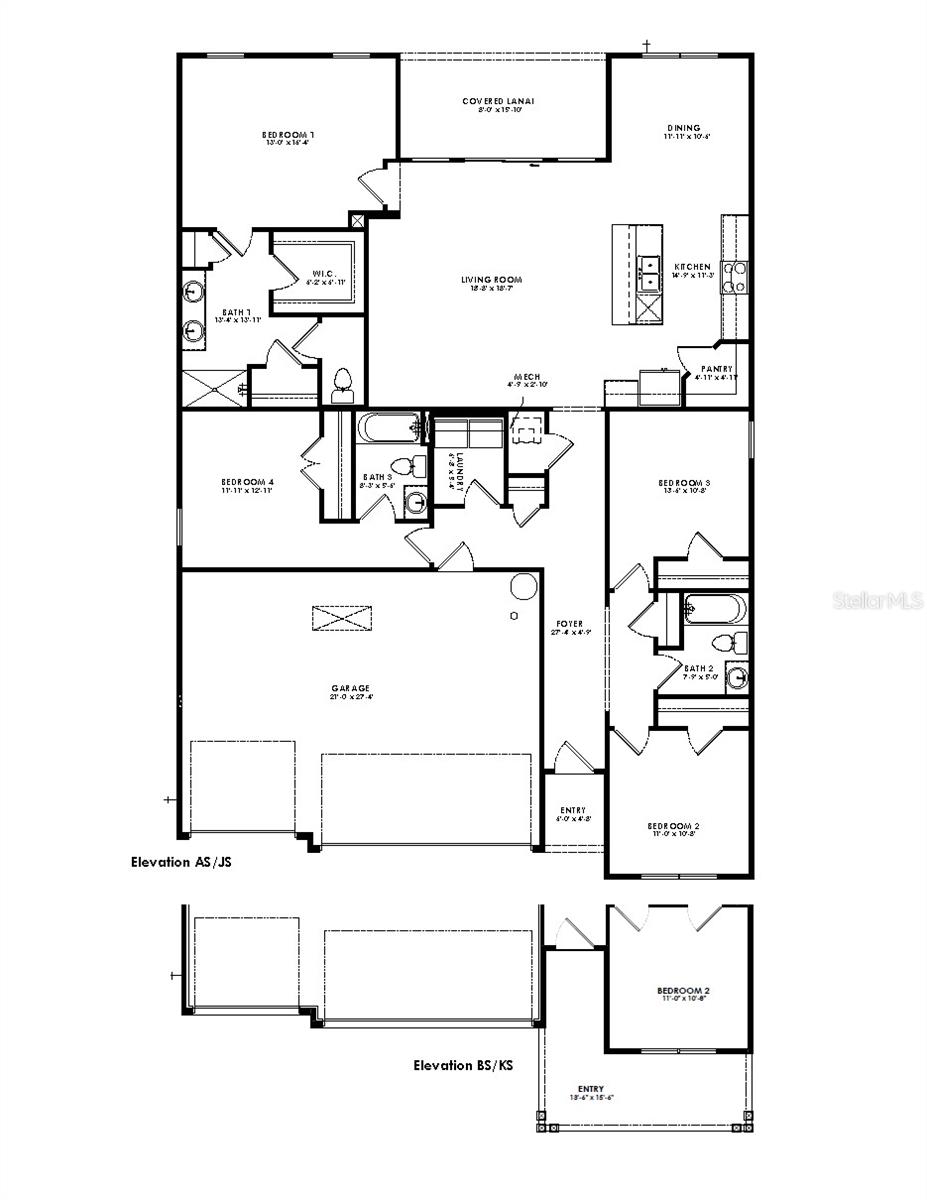
One or more photo(s) has been virtually staged. Under Construction. The Madison is a thoughtfully designed 3-car garage home with an inviting open-concept layout perfect for all families. As you enter the foyer, you're greeted with two guest bedrooms and a shared guest bathroom. Across the hallway you will find the laundry room, linen closet, and a third guest bedroom complete with an ensuite bathroom. Heading into the kitchen, there is a large kitchen island with quartz countertops, stainless-steel appliances, and a spacious walk-in pantry. The kitchen overlooks the great room and dining area flowing into the outdoor covered lanai. Next to the living room is the primary bedroom with a double vanity, quartz countertops, and two closets. Bedroom four has an ensuite bathroom and is located next to the designated laundry room. The Madison is the epitome of modern living and includes a state-of-the-art smart home system. Pictures, photographs, colors, features, and sizes are for illustration purposes only and will vary from the homes as built. Home and community information including pricing, included features, terms, availability and amenities are subject to change and prior sale at any time without notice or obligation. CRC057592.
More Info and HOA
  • Price/Sq. Ft.$211
  • Association Fee Amount$72 Monthly
  • MLS #723463
Exterior Features
  • TypeSingle Family Residence
  • Acres0.14
  • Exterior ConstructionFrame
  • RoofShingle
  • GarageYes
  • PoolNo
Interior Features
  • FloorsCarpet, Luxury Vinyl
  • FeaturesOpen Floorplan
  • Appliances/EquipmentDishwasher, Microwave, Range
  • A/CCentral Air
  • HeatingHeat Pump, Central
  • UtilitiesOther
School Zone
  • Elementary SchoolIdylwild Elementary School-AL
  • Middle SchoolKanapaha Middle School-AL
  • High SchoolGainesville High School-AL
Map Location
  • Road
  • Satellite
  • Hybrid
Listing History
  • Date Days ago Event New Price
  • Apr 24, 2026 0 days ago New on Market $413,070
Schedule Tour or Get More Info

Schedule a tour or receive an e-mail with more information about this property. For immediate assistance with this property or any other properties for sale, call Realtor Matt Price at (352) 281-3551.

Check 1 or More Boxes:
Similar Listings for Sale
X